Košík je prázdný
Sprchové zástěny
Gelco VARIO GOLD MATT jednodílná sprchová zástěna k instalaci ke stěně, kouřové sklo, 1100 mm GX1311-01
Gelco VARIO GOLD MATT jednodílná sprchová zástěna k instalaci ke stěně, kouřové sklo, 1100 mm GX1311-01
Gelco VARIO GOLD MATT jednodílná sprchová zástěna k instalaci ke stěně, kouřové sklo, 1100 mm GX1311-01
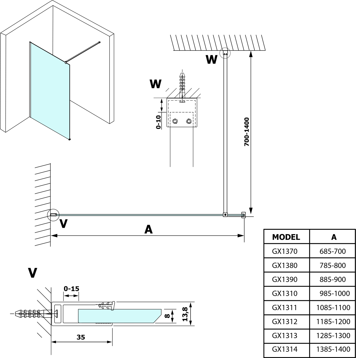
Kolekce walk-in zástěn VARIO nabízí chytré a flexibilní řešení podle individuálních a prostorových dispozic. Stavebnicový systém výplní, vzpěr a profilů umožňuje promyšlené kombinace rozměrů, barev a tvarů zástěn – ať už ke stěně nebo do prostoru. Elegantní vzhled díky minimu komponentů v chromovém, černém matném, bílém matném, zlatém nebo zlatém matném provedení je vhodný pro každou koupelnu.
Charakteristika sprchových walk-in zástěn série VARIO
- Zástěny v šířkách 700 až 1400 mm
- Bezpečnostní sklo o síle 8 mm na výběr v provedení čiré / kouřové / matné / nordic nebo deska z vysokotlakého HPL laminátu o síle 8 mm
- Povrchová úprava skleněných výplní Coated Glass zabraňuje usazování vodního kamene a usnadňuje čištění
- Stěnové profily s tolerancí 15 mm usnadňují stabilní montáž zástěn, instalace je možná na dlažbu nebo sprchovou vaničku
- Stěnový profil zástěn na výběr z provedení: chrom / černá mat / bílá mat / zlatá / zlatá mat
- Kolmá vzpěra o délce 1400 mm na výběr v provedení chrom / černá mat / bílá mat / zlatá / zlatá mat
- Kolmou vzpěru lze zkrátit na požadovaný rozměr
- Rohová vzpěra o délce 650 mm na výběr v provedení chrom / černá mat / bílá mat / zlatá mat
- Možnost přidání pevného přídavného panelu o šířce 350 mm v provedení čiré sklo a barvě profilu chrom / černá mat ke skleněným výplním
- Variabilní provedení L/R
- Výška 2000 mm
Kombinace sestavení sprchového koutu:
Coated glass
Coated glass představuje jednu z nejkvalitnějších úprav skla sprchových koutů. Jedná se o chemickou sloučeninu směsi polymerů, která ve spojení s katalyzátory reaguje s křemičitanovými skupinami obsaženými ve skle. Na skleněných plochách tak vytváří souvislou vrstvu filmu, která vyplní mikropóry ve skle a odpuzuje vodu. Vlivem voděodpudivého filmu se kapky vody shlukují a stékají z povrchu skla. I když dojde k nepatrnému udržení menších kapek na skle, nedojde k chemické vazbě, sklo nebude narušeno a nezešedne.
Vlastnosti
- Tvar: Jednostěnná pevná
- Výška: 2000 mm
- Hloubka: 1100 mm
- Typ výplně: Kouřové sklo
- Úprava skla: Coated glass
- Tloušťka skla: 8 mm
- Barva: Zlatá
EAN:
8590913952135
Šířka:
110 cm
Výška:
200 cm
Barva:
Zlatá
Provedení skla:
Grafitové



