Košík je prázdný
Sprchové kouty
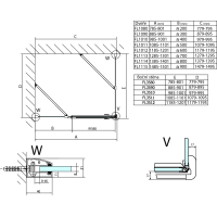
Polysan FORTIS LINE čtvercový sprchový kout 1100x1100 mm, R varianta FL1011RFL3511
Polysan FORTIS LINE čtvercový sprchový kout 1100x1100 mm, R varianta FL1011RFL3511
Polysan FORTIS LINE čtvercový sprchový kout 1100x1100 mm, R varianta FL1011RFL3511
Bezrámové pantové zástěny FORTIS LINE v moderním hranatém designu. Minimalistické pochromované panty v nekompromisním hranatém designu, zevnitř zapuštěné pro snadné čištění a se zvedací funkcí pro pohodlné otevírání. Bezpečnostní čiré sklo v tloušťce 8 mm je ošetřené povrchovou úpravou ANTIDROP pro snadné čištění. Výška 2000 mm. Hranaté pochromované madlo ve stejném minimalistickém designu jako panty.
Praktickým doplňkem je možnost nalepení madla na ručník přímo na skleněnou plochu nebo použití závěsných poliček (madla na ručník ani poličky nejsou součástí zástěn). Ke sprchovým zástěnám doporučujeme vaničky z litého mramoru nebo odtokové kanálky.
K čištění skel doporučujeme ASC čistící a ochranný prostředek, 94000.
Celková charakteristika sprchových zástěn série FORTIS LINE:
- Dveře se zdvihovým mechanismem pantu
- Hranaté pochromované panty jsou zevnitř zapuštěné
- Hranaté minimalistické madlo
- ANTIDROP ochrana skel proti usazování vodního kamene a pro snadnou údržbu
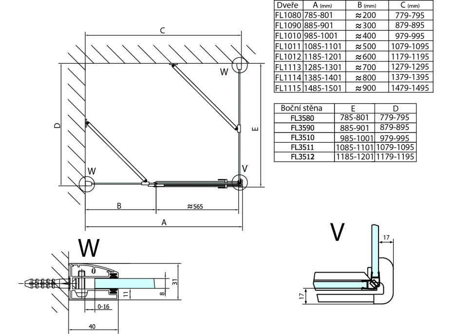
- Rohová vzpěra pro vyšší stabilitu je součástí balení, délka vzpěry se liší podle šířky skla
- Snadná montáž pomocí nastavitelného stěnového profilu 0-16 mm
- Hliníková prahová lišta
- Extra čiré magnetické těsnění
- Instalace na vaničku nebo na podlahu
- Splňuje normu EN 14448
![]() | ![]() | ![]() | ![]() |
| Pochromované madlo | Mosazné pochromované panty se zvedací funkcí... | ... z vnitřní strany zapuštěné do skla | Stabilitu zástěn zajišťuje rohová vzpěra |
Antidrop
Antidrop je povrchová úprava skla pro jeho snadnou údržbu. Při výrobě skla je nanášena na jeho povrch s použitím nanotechnologie a je obsažena v ceně zástěn.
Bezrámové sprchové zástěny
Ochranu proti přetečení vody u bezrámových zástěn zajišťuje nízká přetoková lišta, která dotváří čistý vzhled zástěny. Bezrámové zástěny tak působí svěžím elegantním dojmem.

Vlastnosti
- Vlastnosti: Bezrámové provedení
- Tvar: Čtvercové zástěny
- Rozměr: 110x110 cm
- Šířka: 1100 mm
- Výška: 2000 mm
- Hloubka: 1100 mm
- Typ výplně: Čiré sklo
- Úprava skla: Antidrop
- Tloušťka skla: 8 mm
- Barva profilu: Chrom - Leštěný hliník
- Typ otevíraní: Otevírací jednokřídlé
- Šířka vstupu: 565 mm
- Směr otevírání: Pravé
EAN:
8590913912191
Rozměr delší strany koutu:
110 cm
Rozměr kratší strany koutu:
110 cm
Tvar sprchového koutu:
čtvercový
Barva:
Stříbrná
Provedení skla:
Čiré
Systém otevírání dveří:
křídlové



